
Tee- und Wärmestube Plus – Hilfe, Unterstützung und Beratung im Schillerkiez
Seit 40 Jahren ist die Tee- und Wärmestube Neukölln im Schillerkiez eine feste und verlässliche Anlaufstelle für Menschen in schwierigen Lebenslagen. Die Tageseinrichtung in der Weisestraße 34 bietet Menschen, die von Armut, Wohnungs- oder Obdachlosigkeit betroffen sind, warme Mahlzeiten, Waschmöglichkeiten, eine Kleiderkammer und professionelle Beratung an.
Ab Herbst 2025 entsteht an der Schillerpromenade/Ecke Allerstraße ein Neubau - ein modernes und neues Zuhause für die Tee- und Wärmestube in unmittelbarer Nähe der alten Räume. Die Tee- und Wärmestube Plus ist ein Projekt des Ev. Kirchenkreises Neukölln und des Diakoniewerks Simeon. Sie soll die bewährten Angebote für Menschen in schwierigen Lebenslagen fortführen. Diese Angebote bleiben das Herzstück auch der neuen Einrichtung.

Bärbel Bas, Präsidentin des Deutschen Bundestages:
"Gut, dass es die wichtige Arbeit der Tee- und Wärmestube hier vor Ort gibt und dass sie in Zukunft noch ausgebaut werden soll. Ich komme aus einer Stadt, wo man die Armut jeden Tag sehen kann. Und ich betrachte es auch in meiner Verantwortung, dieses Thema immer wieder in den Fokus zu nehmen und sichtbar zu machen."
Das ‚Plus‘ der neuen Tee- und Wärmestube
Neu hinzu kommen 16 längerfristig bewohnbare Einzelappartements - dringend benötigter Wohnraum für Menschen in schwierigen Lebenssituationen. Ziel es ist, die Bewohnenden ohne zeitlichen Druck in eigenen Wohnraum zu vermitteln. Das ‚Plus‘ der neuen Tee- und Wärmestube ist dieses Wohnen auf Zeit. Es ermöglicht Menschen, die auf der Straße ‚leben‘, wieder ein neues Zuhause zu finden. Begleitet von professionellen Sozialarbeiter*innen erfahren sie in der Tee- und Wärmestube Plus ein gutes Miteinander und Unterstützung dabei, ihr Leben neu zu gestalten. Das Neubauprojekt kommt dem steigenden Bedarf nach geschützten Orten, Rückzugsmöglichkeiten, individueller Beratung und gesellschaftlicher Teilhabe nach.
Ihre Spende hilft!
Unterstützen Sie die Tee- und Wärmestube Plus mit einer Spende:
Diakoniewerk Simeon gGmbH
IBAN: DE90 3506 0190 0000 0300 07
BIC: GENODED1DKD
Verwendungszweck: „Tee- und Wärmestube Plus“
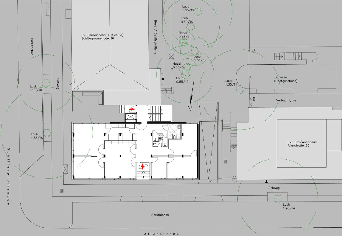
Das Bauvorhaben
Organisatorisches und architektonisches Herz der neuen Tee- und Wärmestube Plus wird das barrierefreie Erdgeschoss. Hierin finden sich große oder auch kleinere Räume für die unterschiedlichen Bedarfe um eine offene Küche herum. Dort kann in Gruppen oder alleine gegessen, gewärmt und Gemeinschaft gefunden werden. Auf der rechten Seite finden sich das Büro und Beratungsräume sowie ein Teil der Sanitärräume. Zusätzlich entstehen im Kellergeschoss ausreichend Dusch‐ und Umkleiden sowie eine große Waschküche, eine Kleiderkammer und anderen Lagerflächen.
Im 1. bis 4. Obergeschoss entstehen 16 Apartments zu längerfristigem Wohnen für Menschen in schwierigen Lebenssituationen. Bei Bedarf stehen ihnen hier auch Sozialarbeiter*innen unterstützend zur Verfügung. Auf etwa 22 Quadratmetern stehen ihnen ein eigenes Duschbad mit WC, eine Teeküchenzeile, Bett, Tisch, Stühle und Einbaumöbel für die persönliche Habe zur Verfügung.
Das Haus wird durch Fernwärme des Fernheizwerks Neukölln versorgt. Wartungsarme Technik sorgt für gute Lüftung. Verwendet werden überwiegend energiearme Bauweisen.
Pressestimmen zur Tee- und Wärmestube plus
- https://entwicklungsstadt.de/tee-waermestube-plus-in-neukoelln-pilotprojekt-fuer-obdachlose/
- https://facettenneukoelln.wordpress.com/2022/08/08/an-der-schillerpromenade-soll-die-tee-und-waermestube-plus-entstehen/
- https://www.morgenpost.de/bezirke/neukoelln/article407622006/baugenehmigung-fuer-das-herzensprojekt-von-berlins-armutsbeauftragten.html
- https://www.tagesspiegel.de/berlin/neuer-ansatz-zur-gesellschaftlichen-teilhabe-in-neukolln-entsteht-ein-wohnprojekt-fur-obdachlose-8424817.html
- https://www.berliner-zeitung.de/mensch-metropole/einmalig-in-berlin-ein-wohlfuehlort-fuer-die-aermsten-entsteht-in-neukoelln-li.239230
- https://www.deutschlandfunkkultur.de/berlin-neukoelln-lobbyist-fuer-arme-im-problemkiez-100.html
- https://berliner-abendblatt.de/kiez-news/neukolln/elke-buedenbender-die-tee-und-waermestube-macht-mir-mut-id188234
Kontakt Armutsbeauftragter

Thomas de Vachroi
Armutsbeauftragter des Ev. Kirchenkreises Neukölln
und des Diakoniewerkes Simeon
Telefon 030 / 30 60 95 50 | t.devachroi@diakoniewerk-simeon.de